Rénovation d’une maison, Anglet (64)
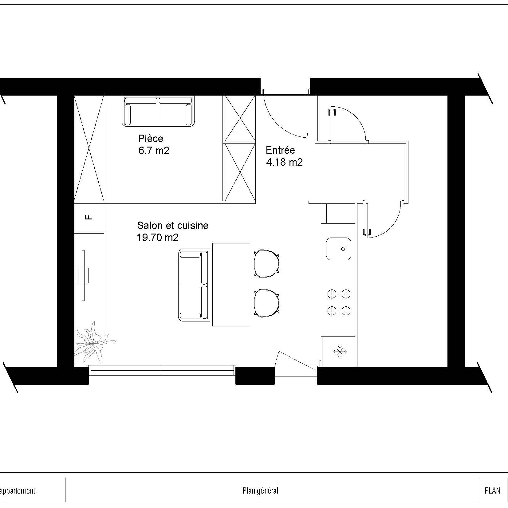
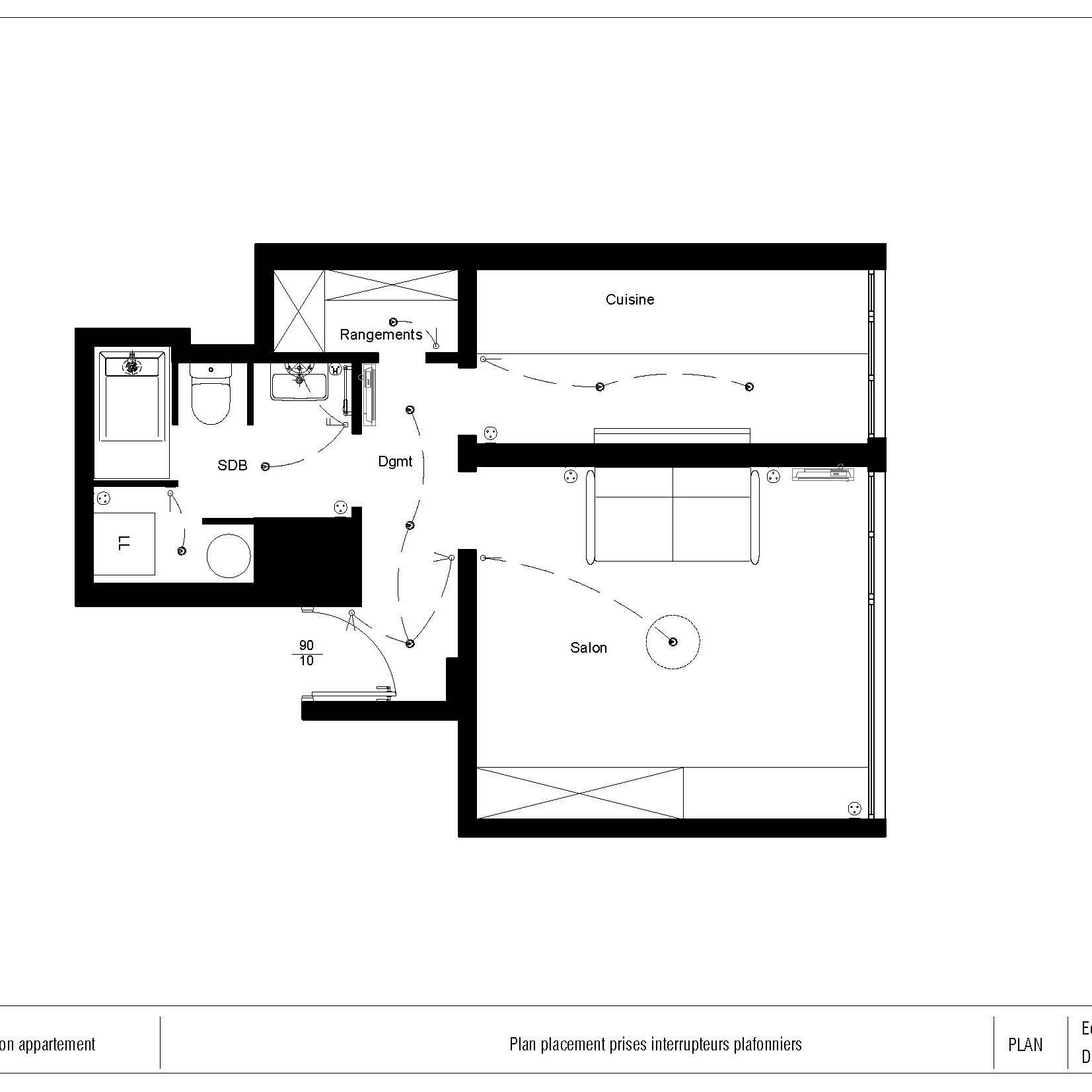
Réalisation des plans d’exécution et du projet pour une rénovation d’une maison individuelle. Chantier en cours. Extrait du dossier, à Anglet (64).
Réalisation des plans d’exécution et du projet pour une rénovation d’une maison individuelle. Chantier en cours. Extrait du dossier, à Anglet (64).
Réalisation d’une rénovation d’un local pour en faire un atelier boutique de poterie. Mise à nue des poutres, et des murs. Valorisation des murs en pierre et des colombage d’origines. Pose plafond coupe-feu et mise aux normes ERP/incendie. A Bayonne (64).
Réalisation d’une déclaration préalable à la Mairie, pour une rénovation de maison individuelle. Photo cuisine après rénovation, à Anglet (64).
Réalisation d’une déclaration préalable à la Mairie, pour l’agrandissement de la cuisine d’une maison. Après travaux, à Anglet (64).
Réalisation d’une déclaration préalable à la Mairie, pour un changement de destination d’une partie du garage, et la rénovation intérieure d’une maison mitoyenne, à Biarritz (64).
Réalisation d’une déclaration préalable à la Mairie, pour la déclaration d’une construction de terrasse extérieure, à Cambo-les-Bains (64).
Modification sur un plan de vente (VEFA), et conception de cuisine afin d’adapter l’appartement au mode de vie et aux demandes du client. Appartement après livraison, à Royan (17).
Réalisation d’une déclaration préalable à la Mairie, pour la réhabilitation d’une bergerie. Bergerie avant travaux. Chantier en cours, à Came (64).
Réalisation de modification sur un plan de vente (VEFA), afin d’adapter l’appartement au mode de vie et aux demandes du client. La chambre et l’emplacement du dressing, à Anglet (64).
Réalisation d’une déclaration préalable à la Mairie, pour la construction d’un mur mitoyen. Mur après réalisation, à Biarritz (64).
Réalisation d’un dossier d’ambiances pour un marchant de bien. Photo du dégagement après travaux.
Proposition de plans d’aménagements pour une agence immobilière dans le cadre d’une future vente, au Lac d’Hossegor (40).
Réalisation d’une déclaration préalable à la Mairie, pour une modification de façade et de toiture. Extrait du dossier, à Oloron (64).
Réalisation d’une déclaration préalable pour la Mairie, pour la construction d’une piscine extérieur, à Ahaxe (64).
Visuel 3D d’un programme constructif composé d’une médiathèque, une auberge de jeunesse et des commerces à La-Teste-de-Buch (33).
Extrait d’un projet de construction de 72 logements. Réalisation d’un projet de réhabilitation de la presqu’île Zorrotza, à Bilbao en Espagne.
Réalisation de plans et de propositions d’ambiances pour une rénovation. Extrait du dossier, au Golf d’Anglet (64).
Réalisation de plans et de propositions d’ambiances pour la rénovation d’un actuel cabinet de kinésithérapie. Extrait du dossier, a Bayonne (64).
Réalisation du relevé métrique, et des plans pour l’aménagement d’une boutique de Joaillerie. Extrait du dossier, a Anglet (64).
Extrait d’un dossier de plans de maison très simple qui ont été réalisés après un relevé métrique pour une future vente immobilière.
Modélisation 3D pour le Tram Bus de Biarritz Anglet Bayonne au sein de l’Agence Patrick Arotcharen (64). Allée Paulmy après travail graphique.
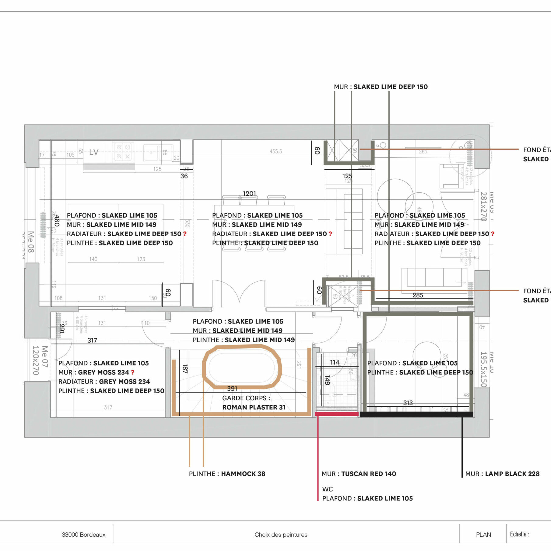
Choix des peintures pour la rénovation d’une habitation, à Bordeaux (33). Extrait du dossier.Choix des peintures pour la rénovation d’une habitation, à Bordeaux (33). Extrait du dossier.
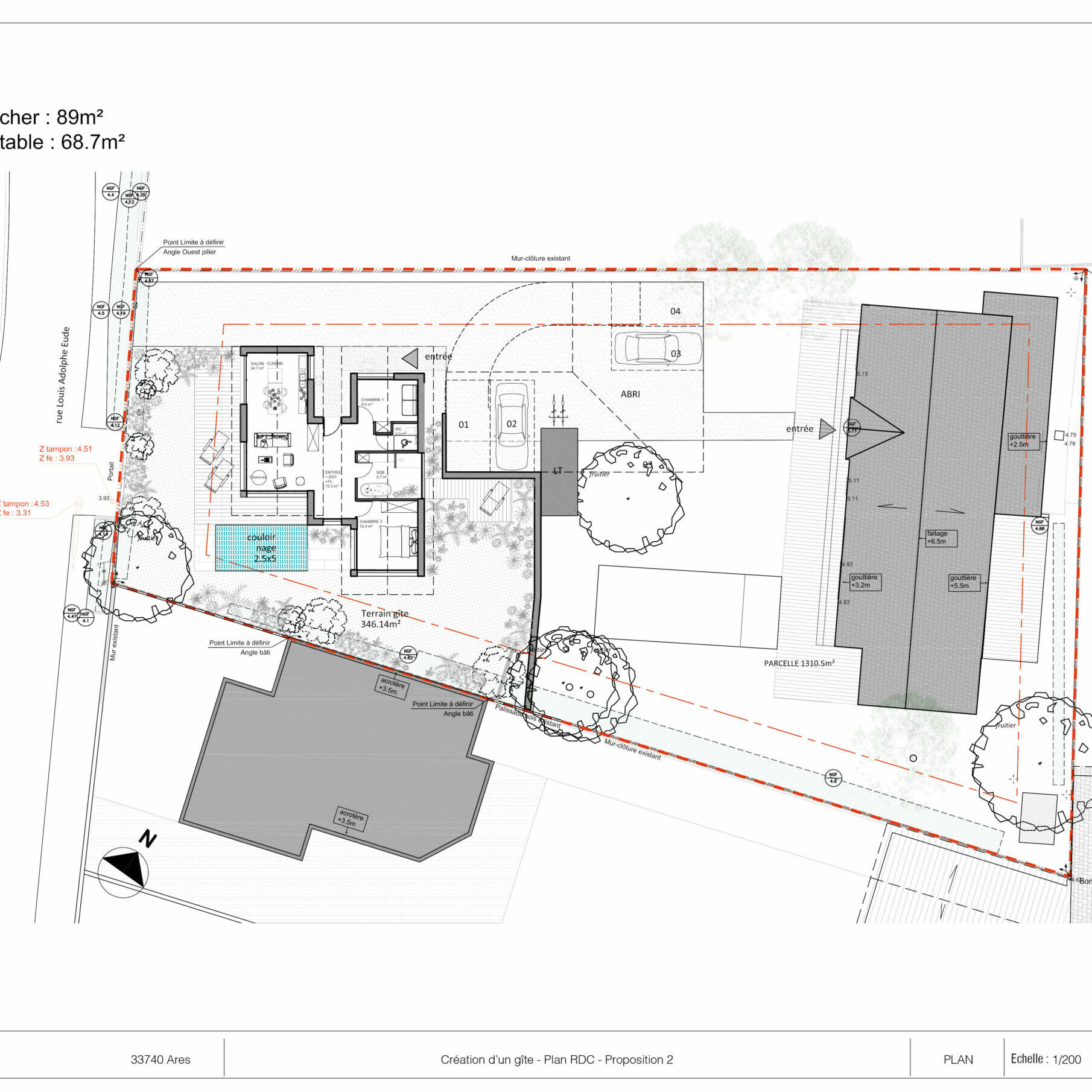
Construction d’un gîte à Arès (33). Plan de la proposition 2.
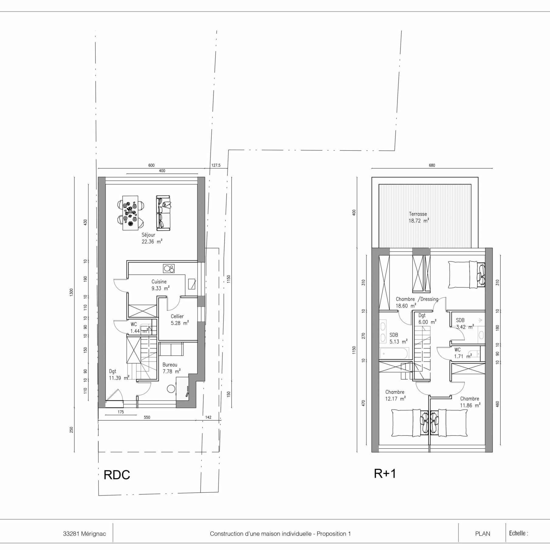
Construction d’une maison individuelle à Mérignac (33). Plan de la proposition.
Réalisation du stand de 120 m2, et des visuels pour PANTHER, au salon Intertextile Shanghaï, en Chine, en 2021.
Réalisation de l’aménagement et des visuels pour The LYCRA Company pour le salon Bluezone Munich, en Allemagne.
Aménagement du magasin de fournitures d’Art Adam, à Paris (75). Image de rendu.
Réalisation du design graphique pour le stand du Bureau de Style Monsieur-T. au Salon Bluezone Munich, Allemagne